Добро пожаловать на http://vipplan.ru

Випплан Серов - это тысячи проектов домов в нашем каталоге!

Вы всегда сможете найти для себя проект дома вашей мечты! Даже если этого не случилось, мы готовы в любую минуту предложить проект индивидуального дома.

Забыли пароль?
Вы еще не регистрировались?

Перейдите по ссылке ниже на страницу регистрации.

Регистрация...

Внимание!!!

В проектную документацию могут быть внесены изменения любой сложности, в соответствии в Вашими пожеланиями!

Полезные статьи

Выбор проекта дома в Серове. Типовой или индивидуальный?

Строительство дома начинается с выбора проекта. От него будет зависит удобство, комфорт и функциональность Вашего будущего дома. Какой проект выбрать? В каталоге проектов домов VIPplan Серов предоставлен огромный выбор проектов на любой вкус и кошелек. В итоге выбор сводится к покупке типового проекта дома или заказа индивидуального проекта. Для упращения задачи, расскажем о каждом варианте по отдельности...

Купить готовый проект дома или заказать индивидуальный?

Перед началом строительства дома возникает необходимость в проекте дома и тут встает вопрос: Купить готовый проект дома или заказать индивидуальный на заказ? Каждый из вариантов по своему хорош и имеет как свои плюсы так и минусы...

Проекты домов и коттеджей > Каталог проектов домов > Проект удобного коттеджа с мансардой Vg1186

Проект удобного коттеджа с мансардой Vg1186

Проект удобного коттеджа с мансардой
Зарегистрируйтесь

Проект № Vg1186


Техническое описание
Общая площадь: 154.49 м2
Жилая площадь: 81.56 м2
Высота здания: 8.03 м
Размеры дома: 13.38м×12.96м
Кол-во комнат: 4
Цокольный этаж: нет
Гараж: нет
Мансарда: есть

Kонструкция
Фундамент: Ленточный
Перекрытия: Деревянные балки
Материал стен: Газобетон

Архитектурный раздел
Конструктивный раздел
АР+КР - 56 000 (Со скидкой 20%)
Проект индивидуального однотажного жилого дома с мансардой с размерами здания 13,38 х 12,96м. Наружная отделка здания – фасадная штукатурка и клинкерная плитка. Фундамент – ленточный монолитный ж/б (под несущими стенами). Наружные стены – из газобетонных блоков , экструдированного пенополистирола с отделкой фасадной штукатуркой и клинкерной плиткой Внутренние стены - газобетонные блоки. Перегородки – из газобетонных блоков толщиной 150 мм- 1 этаж,2 этаж- каркасные с ГКЛ. Пол подвала- пол по грунту. Межэтажное перекрытие – по деревянным балкам с использованием теплошумоизоляционных материалов Крыша гибкая черепица. Кровля – двускатая. Окна - металлопластиковые, выполненные по индивидуальному заказу.
Генплан застройки участка / Паспорт проекта 7000 руб / 10000 руб
Инженерный раздел (полный) 77000 руб
Смета на строительство 38500 руб
Теплотехнический расчет материалов стен Бесплатно
Стоимость проекта со незначительнми изменениями 66150 руб
Стоимость проекта со средними изменениями* 77700 руб
Стоимость проекта со значительными изменениями** 80800 руб

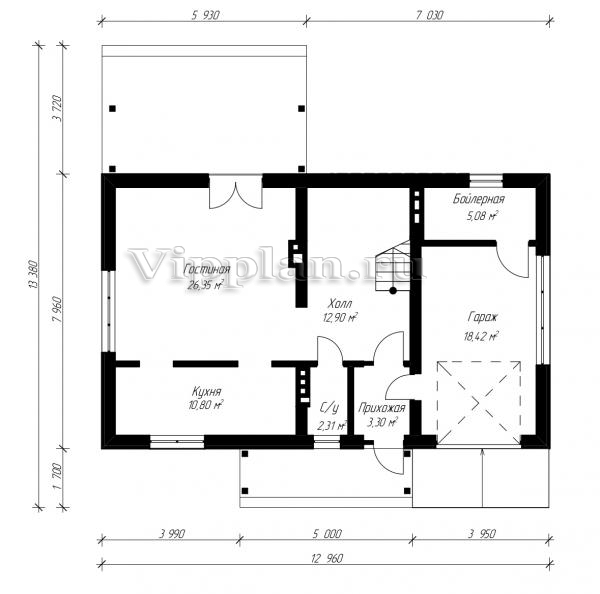
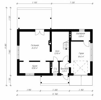
План первого этажа


Прихожая — 3,30 м2
Холл — 12,90 м2
Гостиная — 26,35 м2
Кухня — 10,80 м2
Бойлерная — 5,08 м2
Гараж — 18,42 м2
С/у — 2,31 м2

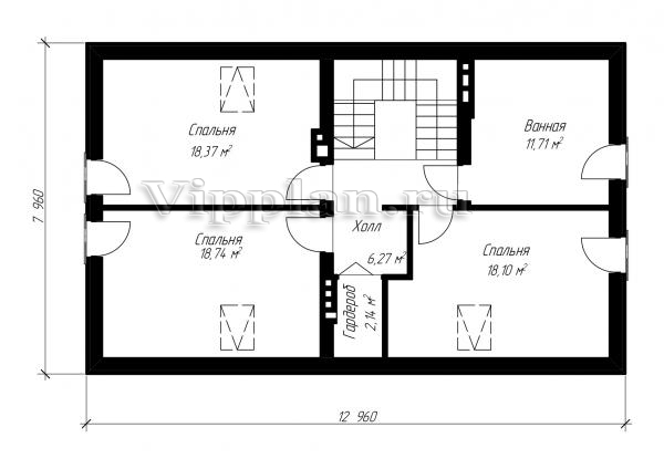
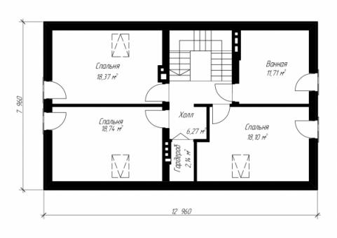
План мансардного этажа


Холл — 6,27 м2
Ванная — 11,71 м2
Спальня — 18,10 м2
Гардероб — 2,14 м2
Спальня — 18,74 м2
Спальня — 18,37 м2
Проект удобного коттеджа с мансардой Проект удобного коттеджа с мансардой Проект удобного коттеджа с мансардой Проект удобного коттеджа с мансардой
Внесение изменений и привязка к участку строительства

В любой из проектов от компании VIPplan - Серов по вашему желанию могут быть внесены изменения в материалы стен, материалы наружной отделки дома, а также будет произведена адаптация проекта под конкретный регион строительства (с учетом грунтов региона, геологических особенностей вашего участка и местных климатических условий) - БЕСПЛАТНО !!! (кроме проектов со скидкой и проектов наших партнеров).

Любой из проектов, размещенных на сайте serov.vipplan.ru мы можем выполнить из требуемых вам строительных материалов: ячеистый бетон (газобетон, пеноблок), керамоблок, кирпич, шлакоблок, бетонный блок, дерево (брус, клееный брус), каркасная технология (деревянный каркас, металлокаркас (ЛСТК)).

Фасад дома и его наружную отделку так же возможно выполнить с применением различных облицовочных материалов: структурной штукатурки, (с утеплителем и без), сайдингом (пластиковый или металлосайдинг), фиброплитами, кирпича.

 
6 Избранные
проекты

Доставка проектов по России: Москва (Московская область), Санкт-Петербург (Ленинградская область), Краснодар, Ростов-на-Дону, Ставрополь, Сочи, Волгоград, Новосибирск, Белгород, Брянск, Воронеж, Саратов, Хабаровск, Астрахань, Нальчик, Владикавказ, Екатеринбург, Тюмень, Самара, Нижний Новгород, Казань, Пермь, Уфа, Челябинск, Красноярск, Ханты-Мансийск, Иркутск, Курган, Оренбург, Омск, Томск, Барнаул, Новокузнецк, Кемерово, Абакан, Чита, Якутск, Южно-Сахалинск, Петропавловск-Камчатский и страны ближнего зарубежья: Белоруссия, Украина, Казахстан